Nieuwbouwwoning Lommel

Nieuwbouwwoning Kerkhovensesteenweg lot 2 3920 Lommel

1 woning beschikbaar

OPEN KLASSIEKE BEBOUWING IN EEN GUNSTIGE OMGEVING

Op een vlot bereikbare locatie langs de Kerkhovensesteenweg in Lommel ligt dit perceel van 10a77ca met royale afmetingen en een gunstige oriëntatie. De ligging combineert bereikbaarheid met een open woonomgeving, op korte afstand van winkels, scholen en dagelijkse voorzieningen.

Het perceel heeft een straatbreedte van 17,72 meter en een diepte van 67,70 meter, wat zorgt voor een ruimtelijk gevoel en diverse bouwmogelijkheden. De toegelaten bouwbreedte bedraagt 9,82 meter. Op het gelijkvloers kan gebouwd worden tot 17 meter diep, op de verdieping tot 12 meter.

Zowel een plat als een hellend dak is toegestaan. Er geldt geen bouwverplichting, wat flexibiliteit biedt voor wie op eigen tempo wil bouwen of het perceel als investering beschouwt.

De voorgevel is zuidoost georiënteerd en geniet van een aangename lichtinval. De noordwest gerichte tuin biedt dankzij de diepte voldoende ruimte om een zonnige en private buitenomgeving te creëren. Een bouwgrond met duidelijke voorschriften, mooie proporties en veel potentieel op een gunstige locatie in Lommel.

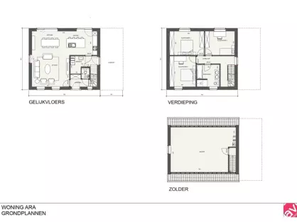
De voorgestelde klassieke woning heeft een oppervlakte van 157m2 + 58m2 zolder. Er is een eet- en zithoek voorzien en een ruime keuken met berging. Boven zijn er alvast 3 slaapkamers en een badkamer met bad/douche. Warmtepomp, vloerverwarming, zonnepanelen, ventilatie D+ zijn reeds voorzien.

Alle keuzes i.v.m. de afwerking van de woning zijn naar wens bespreekbaar. Ook het ontwerp van de woning is slechts een voorstel en kan volledig met jou op maat uitgewerkt worden. Vanaf casco afwerking biedt de woning je alvast alle zekerheden en garanties en van daaruit kan je zorgeloos verder afwerken. Een volledig afgewerkte woning is natuurlijk ook mogelijk! 

Dit project wordt aangeboden i.s.m. Nancy Aerts Vastgoed.

Wens je meer info over deze woningen?

Plan je vrijblijvende afspraak met bouwadviseur Luc via onderstaand formulier.

Ter bescherming van uw persoonsgegevens maakt Browsbox gebruik van de reCAPTCHA-technologie van Google. Het Privacybeleid en de Servicevoorwaarden van Google zijn daarop van toepassing.
Nieuwbouwwoning, open klassieke woning, ara, Lommel

Indelings- en verkavelingsplan

CASCO AFWERKING        

  • Ruwbouw winddicht 
  • Sanitaire leidingen (inclusief hergebruik van regenwater)
  • Elektriciteit
  • Vloerverwarming en warmtepomp
  • Pleisterwerken
  • Isolatiewerken en chape
  • EPB berekening
  • Ventilatiesysteem D+
  • 8 zonnepanelen
  • Kostprijs architect en veiligheidscoördinatie inclusief

SLEUTEL-OP-DE-DEURAFWERKING

  • Casco afwerking
  • Afgewerkte keuken
  • Sanitaire toestellen
  • Tegelvloeren op het gelijkvloers en in de badkamer
  • Binnendeuren
  • Trap in rubberwood
  • Voegwerken

PRIJS CASCO € 377 000

€ 377 000 excl. alle kosten op grond en constructie
€ 464 000 incl. alle kosten op grond en constructie

PRIJS SLEUTEL-OP-DE-DEUR € 407 000

€ 407 000 excl. alle kosten op grond en constructie
€ 499 000 incl. alle kosten op grond en constructie

Deel dit project

of bekijk alle projecten

Woningen

  • Nieuwbouwwoning Lommel
    EPB: A+

    Nieuwbouwwoning Lommel

    klassieke woning
    157m2
    58m2
    3
    3
Maak een afspraak