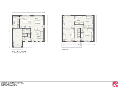
Nieuwbouwwoning Diest
Nieuwbouwwoning Tessenderloseweg 21/A 3290 Diest
1 woning beschikbaar
Woningen
-
EPB: A+Nieuwbouwwoning Diest
Moderene woning205m232











