Nieuwbouwwoning te Hasselt

Nieuwbouwwoning te Hasselt - Spalbeekstraat

VERKOCHT

NIEUWBOUWWONING Spalbeekstraat Hasselt

Op zoek naar een moderne nieuwbouwwoning die aan alle EPB eisen voldoet ?

Dan is deze woning in de Spalbeekstraat te Hasselt iets voor u !

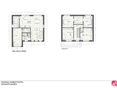
Mooi gelegen bouwgrond te Hasselt, in de Spalbeekstraat, in een residentiële omgeving. In samenwerking met Limburgs Vastgoed, biedt AVL je de mogelijkheid tot het bouwen van een woning, volledig naar eigen wensen. Het voorbeeld op de website is een woning van 205m2, bestaande uit een inkomhal, een berging, toilet, technische ruimte, garage, een open leefruimte en keuken. De grote ramen in de achtergevel zorgen voor veel lichtinval. Boven zijn er 3 ruime slaapkamers en een badkamer met bad en douche.

De prijs is exclusief de aan te passen fundering (indien nodig, blijkt na sondering).

De woning biedt je alvast alle zekerheden en garanties inzake EPB waarden. We geven je graag uitgebreid uitleg over de vele mogelijkheden in een persoonlijk gesprek.

Dit project realiseren wij in samenwerking met Limburgs Vastgoed.

Meer info ? Bel bouwadviseur Geert op 011/450 280  voor een vrijblijvende afspraak.

Sleutel op de deur afwerking

  • Ruwbouw winddicht
  • Sanitaire leidingen (inclusief hergebruik van regenwater).
  • Elektriciteit
  • Verwarming op luchtwater warmtepomp met vloerverwarming
  • Pleisterwerken
  • Isolatiewerken en chape
  • EPB berekening
  • Ventilatiesysteem D+
  • zonnepanelen
  • Kostprijs architect en veiligheidscoördinatie inclusief
  • Afgewerkte keuken
  • Sanitaire toestellen
  • Tegelvloeren op het gelijkvloers en in de badkamer
  • Binnendeuren in tubespaan, reeds voor geschilderd
  • Voegwerken
  • Trap in rubberwood

Deel dit project

of bekijk alle projecten

Woningen

  • Nieuwbouwwoning te Hasselt
    VERKOCHT
    EPB: A+

    Nieuwbouwwoning te Hasselt

    Moderne woning
    205m2
    3
    2
Maak een afspraak